Projeto hidrossanitário: Etapas e exigências
Entenda o que é o projeto hidrossanitário, quais são suas etapas, exigências legais e normas técnicas. Veja por que ele é essencial para aprovação da obra.
Tiago André
12/19/20253 min read


Introdução
O projeto hidrossanitário é um dos projetos complementares mais importantes de qualquer edificação. Apesar disso, ainda é tratado por muitos como um detalhe técnico — quando, na prática, é um requisito legal e funcional.
Um projeto hidrossanitário bem elaborado garante:
funcionamento correto das instalações,
aprovação nos órgãos competentes,
redução de custos com manutenção,
e evita problemas como vazamentos, entupimentos, mau cheiro e retrabalho.
Neste artigo, o Studio Âmbito explica o que é o projeto hidrossanitário, quais são suas etapas e quais exigências legais e técnicas precisam ser atendidas.
O que é projeto hidrossanitário?
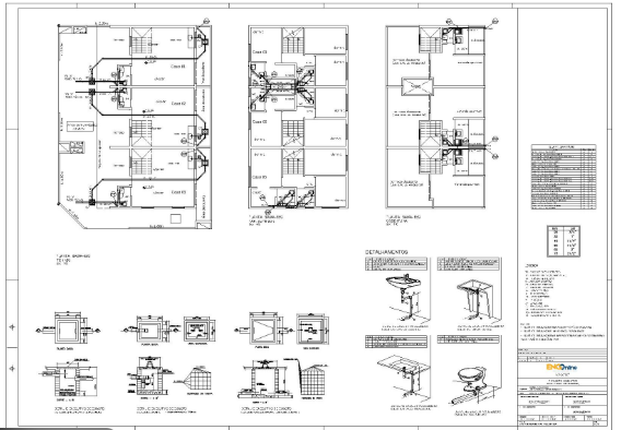
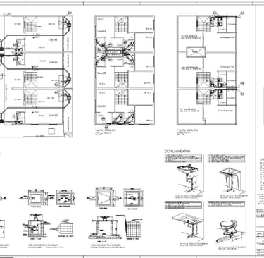
O projeto hidrossanitário é o conjunto de estudos e desenhos técnicos que definem e dimensionam:
sistemas de água fria
sistemas de água quente
esgoto sanitário
drenagem pluvial
reservatórios, caixas, prumadas, ramais, ventilação e dispositivos de controle
Ele não se limita à marcação de torneiras, ralos e vasos sanitários. Trata-se do mapeamento completo do caminho da água, desde o abastecimento até a destinação final dos efluentes e das águas pluviais.
Por isso, deve ser desenvolvido em total compatibilidade com o projeto arquitetônico, estrutural, elétrico e de prevenção contra incêndio.
Para que serve o projeto hidrossanitário?
O projeto hidrossanitário serve para garantir que a edificação funcione corretamente, de forma segura, econômica e dentro das normas.
Entre os principais benefícios estão:
Pressão adequada nos pontos de uso
Dimensionamento correto das tubulações
Economia de água e materiais
Facilidade de manutenção futura
Redução de patologias construtivas
Atendimento às exigências legais
Aprovação para alvará e habite-se
Grande parte dos problemas em edificações está relacionada a falhas nas instalações hidrossanitárias, geralmente causadas por ausência de projeto ou projeto mal dimensionado.
Projeto hidrossanitário é obrigatório?
Sim.
O projeto hidrossanitário é exigido pela prefeitura, concessionárias de água e esgoto e, em muitos casos, pelo Corpo de Bombeiros.
Sem ele, a obra pode:
ter o alvará negado,
sofrer embargo,
não obter habite-se,
gerar retrabalho e custos adicionais.
Além disso, somente arquitetos ou engenheiros habilitados podem elaborar e assinar o projeto, com emissão de RRT ou ART.
Quais são as etapas do projeto hidrossanitário?
1. Estudo preliminar e análise de escopo
Nesta etapa são definidos:
tipo de edificação (residencial, comercial ou industrial),
número de usuários,
pontos de consumo,
sistemas que farão parte do projeto (água quente, reaproveitamento, cisterna, poço, etc.).
Esse levantamento orienta todas as decisões técnicas do projeto.
2. Lançamento dos sistemas
Consiste no posicionamento preliminar de:
entradas de água,
reservatórios,
prumadas,
ramais,
pontos de uso,
caixas de inspeção, gordura e passagem.
Aqui, o foco é garantir viabilidade espacial e compatibilização com a arquitetura.
3. Dimensionamento técnico
É a etapa mais crítica do projeto.
Inclui o cálculo de:
diâmetro das tubulações,
volumes de reservatórios,
vazões e pressões,
inclinações de esgoto,
dimensionamento de calhas e condutores pluviais.
Todo o dimensionamento deve seguir rigorosamente as normas técnicas da ABNT.
4. Compatibilização com projetos complementares
O projeto hidrossanitário precisa ser compatibilizado com:
estrutura,
elétrica,
incêndio,
fundações.
Essa etapa evita interferências graves, como:
cortes indevidos em vigas,
conflitos com eletrodutos,
improvisos na obra.
5. Detalhamento e documentação final
Nesta fase são entregues:
plantas baixas,
vistas isométricas,
detalhes construtivos,
memorial descritivo,
memorial de cálculo,
quantitativos,
ART ou RRT.
Esses documentos orientam a execução correta da obra e futuras manutenções.
Quais normas regem o projeto hidrossanitário?
As principais normas técnicas aplicáveis são:
NBR 5626 — Sistemas prediais de água fria e quente
NBR 8160 — Sistemas prediais de esgoto sanitário
NBR 7198 — Instalações prediais de água quente
NBR 15575 — Desempenho das edificações
NBR 16280 — Reformas em edificações
O atendimento às normas é fundamental para a aprovação legal e segurança da edificação.
Projeto hidrossanitário muda conforme o tipo de obra?
Sim.
Cada tipo de edificação possui exigências específicas:
Residencial: foco em conforto, pressão e manutenção
Comercial: maior demanda, normas sanitárias e fiscalização
Industrial: cargas maiores, processos específicos e efluentes
Projetos genéricos aumentam o risco de falhas e reprovação.
Erros comuns em projetos hidrossanitários
Falta de compatibilização com estrutura
Subdimensionamento de tubulações
Mistura de rede pluvial com esgoto
Ausência de ventilação sanitária
Projeto feito após o início da obra
Esses erros geram custos elevados, retrabalho e prejuízo ao usuário final.
Conclusão
O projeto hidrossanitário não é apenas uma exigência técnica — é um pilar da qualidade, segurança e legalidade da obra.
Quando bem planejado, ele:
evita problemas futuros,
reduz custos,
garante aprovação,
valoriza o imóvel.
No Studio Âmbito, o projeto hidrossanitário é tratado de forma integrada à arquitetura, garantindo execução eficiente, conformidade legal e desempenho a longo prazo.
Perguntas frequentes (FAQ)
Projeto hidrossanitário é obrigatório para habite-se?
Sim. Sem ele, a edificação pode não ser regularizada.
Quem pode assinar o projeto hidrossanitário?
Arquitetos ou engenheiros legalmente habilitados.
Projeto hidrossanitário é igual ao hidráulico?
Não. O hidrossanitário inclui hidráulico, esgoto e drenagem pluvial.
Pode fazer o projeto depois da obra pronta?
Não é o ideal e pode gerar custos altos de regularização.
Projeto hidrossanitário evita problemas futuros?
Sim. Ele é essencial para funcionamento correto e manutenção.
Contato
Fale conosco para projetos e parcerias.
Telefone
Copyright © Studio Âmbito. (Lei 9610 de 19/02/1998)


Portfólio 2025


